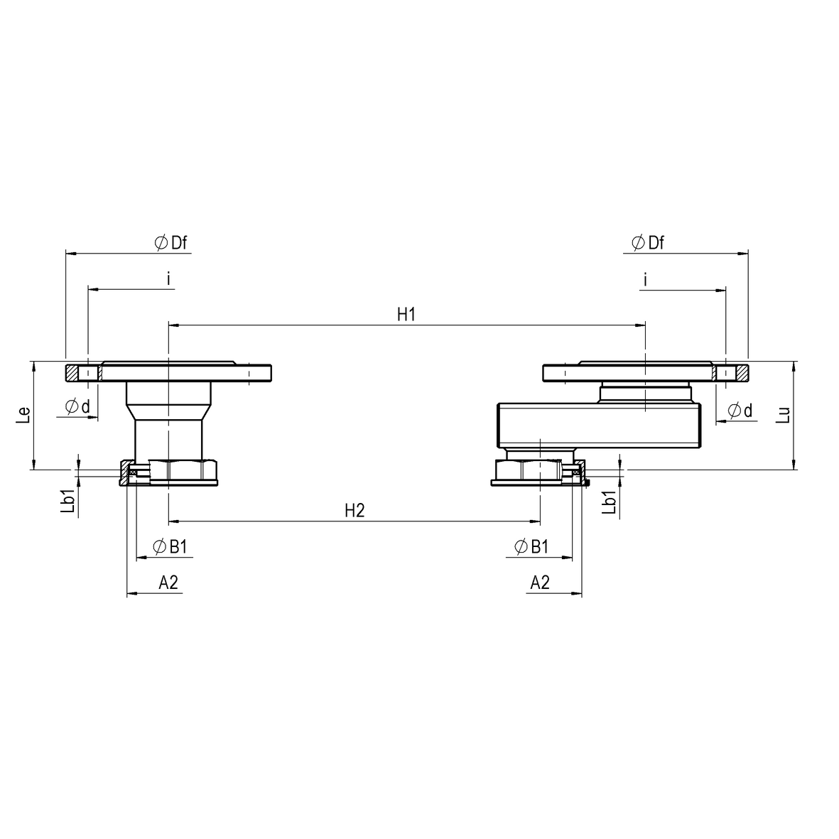
Kit adattatore e cannotto per contatore gas da G40 I=430 a G16 I=280 con guarnizioni DN65 PN16 GI-FL girevole
Articolo GAS
              
            
			
			
			MENSOLE GAS
            
Adattatori per contatore gas
            
            
            
            
 
 
 
            
            Adattatori per contatore gas
| Codice | Peso | Imballo | Imballo Master | M | F | NA | NA | NA | Le | Lu | Lb1 | Lb2 | ØB1 | Combinazione | Tipo Contatore | A1 | A2 | ØB2 | L1 | L2 | H1 | NA | d | ØT | ØP1 | ØP2 | NA | A3 | Q | PN-MOP | PCP1 | PCP2 | NA | NA | NA | NA | NA | NA | NA | NA | NA | NA | cod. | H2 | Ch1 | Ch2 | Ch3 | |
|---|---|---|---|---|---|---|---|---|---|---|---|---|---|---|---|---|---|---|---|---|---|---|---|---|---|---|---|---|---|---|---|---|---|---|---|---|---|---|---|---|---|---|---|---|---|---|---|---|
| 64662500414 | 8,42 | 8,42 | 2 | 0 | 0 | 0 | 0 | 0 | 98 | 98 | 6 | 0 | 46,5 | FL-Gi-FL | G10 e G16 | DN65-PN16 | G2 | 0 | 0 | 0 | 430 | 0 | 0 | 0 | 0 | 0 | 0 | DN65-PN16 | - | MOP0.5 | - | - | 185 | 145 | 18 | 0 | 0 | 0 | 0 | 0 | 0 | 0 | - | 150 | - | - | - | 
Vedi anche...
              
               -  
               Supporto con 1 perno di sostegno e con 2 asole per fissaggio a muro Supporto con 1 perno di sostegno e con 2 asole per fissaggio a muro
-  
               Dima per contatore gas G16 I=280 con attacchi M 2 Dima per contatore gas G16 I=280 con attacchi M 2
-  
               Mensola per contatore gas I=110 valvola in entrata con farfalla gialla sigillabile cannotto in uscita con PCP e flessibile L=300 con supporto regolabile F GI M Mensola per contatore gas I=110 valvola in entrata con farfalla gialla sigillabile cannotto in uscita con PCP e flessibile L=300 con supporto regolabile F GI M
-  
               Mensola per contatore gas I=110 valvola in entrata con serratura 301÷340 cannotto in uscita con PCP F GI M Mensola per contatore gas I=110 valvola in entrata con serratura 301÷340 cannotto in uscita con PCP F GI M
-  
               Mensola per contatore gas I=110 valvola in entrata con cappuccio giallo sigillabile cannotto in uscita con zanca a murare F GI M Mensola per contatore gas I=110 valvola in entrata con cappuccio giallo sigillabile cannotto in uscita con zanca a murare F GI M
 
  
 
 
  
 